Skip to main content

6 Arlington Circle, Ballston Spa

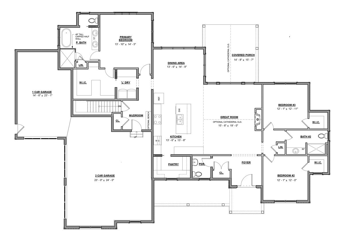
2,600 Square Feet    3 Bedrooms    2.5 Bathrooms

[From the 2025 SOH Fall Magazine]

Welcome to 6 Arlington Circle where elegance meets modern sophistication. This spectacular 3 bedroom, 2.5 bath custom-built ranch located in Homestead Landing features two levels of living space with the finished lower level. The main floor flows through an open-style kitchen-dining-great room concept making it ideal for everyday living and entertaining.  The gourmet kitchen features a waterfall island, and gorgeous walk-in pantry with custom cabinets and a beautiful stone counter top and backsplash. The great room features a grand fireplace wall framed with custom -lit niches creating a dramatic focal point that blends warmth with modern sophistication. The primary bedroom ensuite features a large walk-in closet, a primary bath with a stunning floor-to-ceiling tiled shower and a soaking tub! The beautiful, covered terrace with natural stone flooring off the great room creates a seamless extension of the home's luxury, offering additional living space that opens to the airy outdoor living area featuring a fire pit.

In the spacious lower level, you will find a home entertainment space featuring an acoustic tambour wall that brings texture, warmth and superior sound quality to the space. A custom craft and mixed media room with expansive work surfaces, hidden storage and luxurious finishes. Rounding out the lower level living area is a custom home gym.

Bella Home Builders
228 Church Street, Saratoga Springs    bellahomebuildersinc.com

518-583-1833    This email address is being protected from spambots. You need JavaScript enabled to view it.

Bella Home Builders is an award-winning, family owned custom home company that specializes in designing and building homes in the Capital Region and surrounding areas. For more than three decades, we have set the standard for building one-of-a-kind custom homes for individual clients.

Every client should have the information they need to make smart, informative decisions about the type of home they want to build for their family. We work with each client to establish expectations from the initial consultation and continue the company’s commitment to strong communication and excellence in customer service.

We believe in the value of the most minuscule details that can provide our customers with a positive building experience along with a premium product. Because of this we’re proud to state that all our neighborhoods offer gorgeous wooded lots, just minutes from all the amenities each area offers. At Bella we understand that we’re building so much more than a home; we’re building memories that will last a lifetime.

Realtor
Rick Gargiulo, Sterling Real Estate Group

1487 Saratoga Road, Ballston Spa

518-369-7804
This email address is being protected from spambots. You need JavaScript enabled to view it.
rickgargiulo.sterling518.net

Landscaper
Matt Baker,
GSL Landscaping and Nursery

4820 Duanesburg Road
P. O. Box 604, Duanesburg

518-506-1943
gsllandscaping.com

Interior Design
Paula McCormick,
Paula McCormick Interiors

10 Starbuck Drive, Suite 102, Troy

518-986-1196
This email address is being protected from spambots. You need JavaScript enabled to view it.
paulamccormickinteriors.com

Kitchen Design
Nicole Stack, Curtis Lumber
Kitchen and Baths

885 Route 67, Ballston Spa

518-885-5311

This email address is being protected from spambots. You need JavaScript enabled to view it.
curtislumberkitchendesign.com